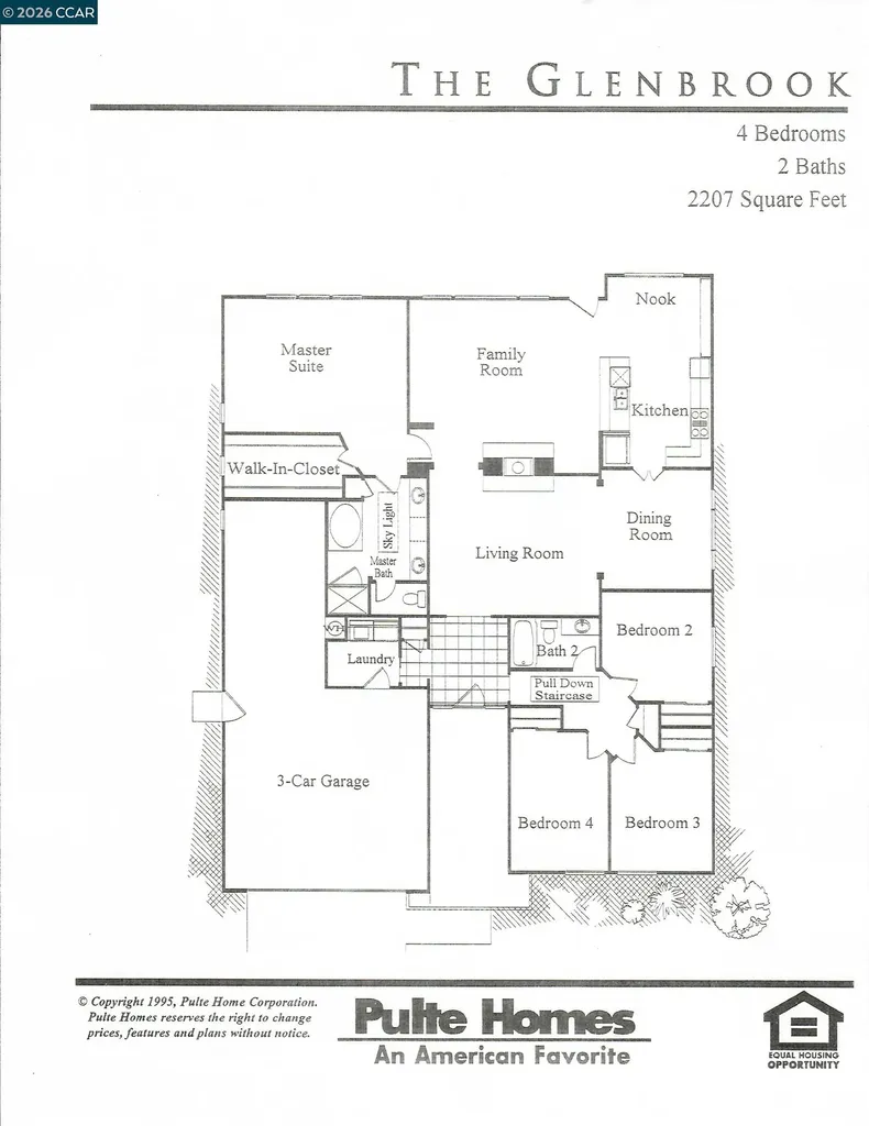
Absolutely fantastic single story home with 2,218 square feet of living space on a 8,510 square foot premium lot situated in the highly sought after Pulte Horizon Collection community off of Fairview Ave & San Jose Ave. The original builder spec was a 4 bedroom 2 bathroom home though the first owners elected for a massive 3rd bedroom with two separate closets. The 3rd bedroom could easily be converted back to two individual nice sized bedrooms (see floorplan in the photos). The amazing home features a family room and living room with vaulted ceilings and a double facing fireplace, in addition to a formal dining room area. The kitchen features solid counters, electric cooktop, built in microwave, updated white cabinets with lots of storage and counter space. The primary bedroom has vaulted ceilings, and multiple windows for natural lighting. The primary bathroom features a stall shower, separate bathtub, dual sinks and a spacious walk-in closet. The home has wonderful curb appeal with the manicured front and back yards. Three car tandem garage. 220 EV charge. Do Not Miss Out on the Incredible Opportunity!

Listing Tools (detailViewNewGen)

Property Details of 1160 Orchid Drive

Property Details

Interior Features

Exterior Features

Utilities and Appliances

Community

Map Location

Listed by Frank Bermudez of Exp Realty of California Inc.

Bay East (c)2025, CCAR (c)2025. bridgeMLS (c)2025. Information Deemed Reliable But Not Guaranteed. This information is being provided by the Bay East MLS, or CCAR MLS, or bridgeMLS. All data, including all measurements and calculations of area, is obtained from various sources and has not been, and will not be, verified by broker or MLS. All information should be independently reviewed and verified for accuracy. Properties may or may not be listed by the office/agent presenting the information.

Hi there! How can we help you?

Contact us using the form below or give us a call.

Send Us A Message:

I agree to receive marketing, customer service calls, and text messages from Jill Carrigan. To opt out, you can reply 'stop' at any time or click the unsubscribe link in the emails. Consent is not a condition of purchase. Msg/data rates may apply. Msg frequency varies. Privacy Policy.

Do not fill in this field:

This site is protected by reCAPTCHA and the Google Privacy Policy and Terms of Service apply.